Skip to content
LUZSADA studio
spaces, emotions, LUZ
Menu
+
×
expanded
collapsed
Sensaspatium
Daily pieces
Spatial
Branding
Say hi!
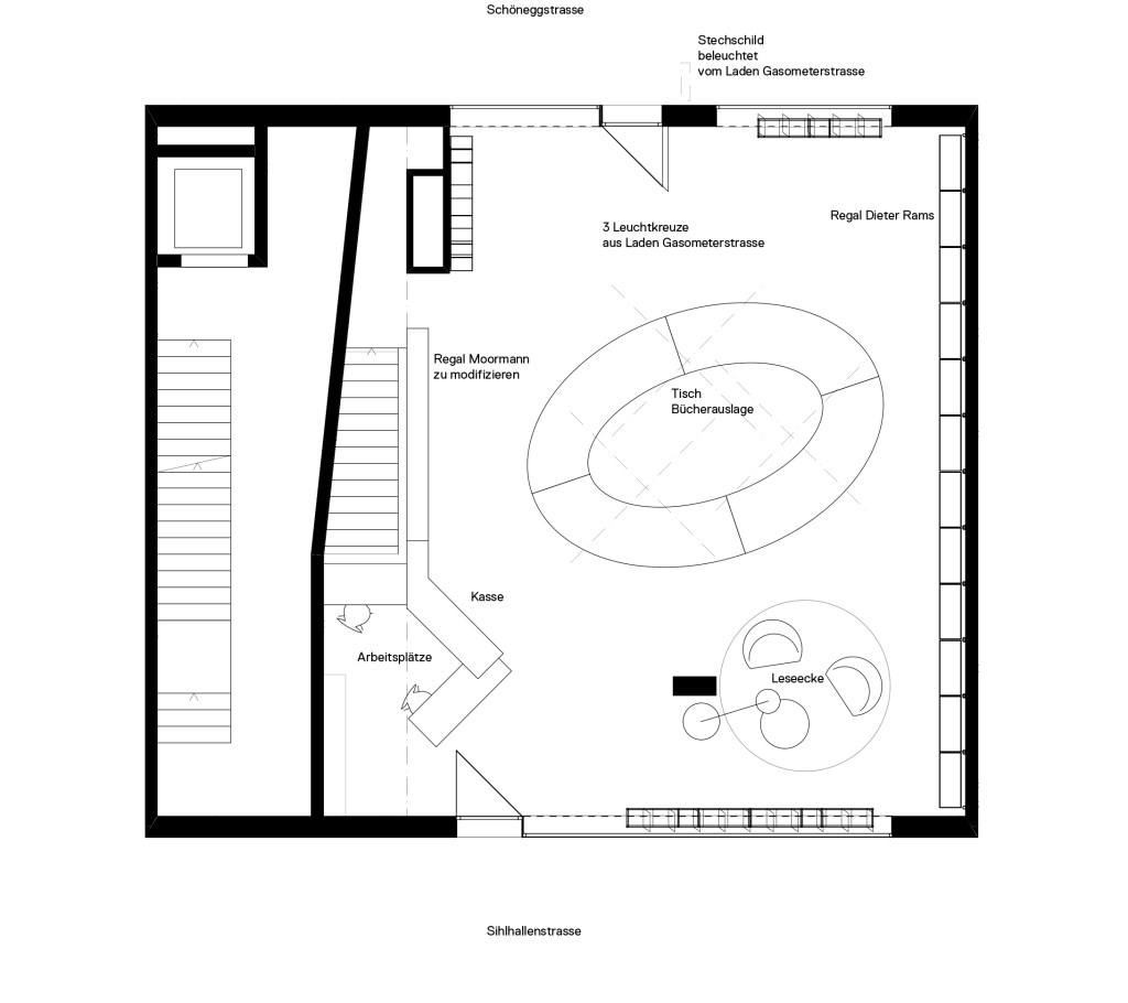
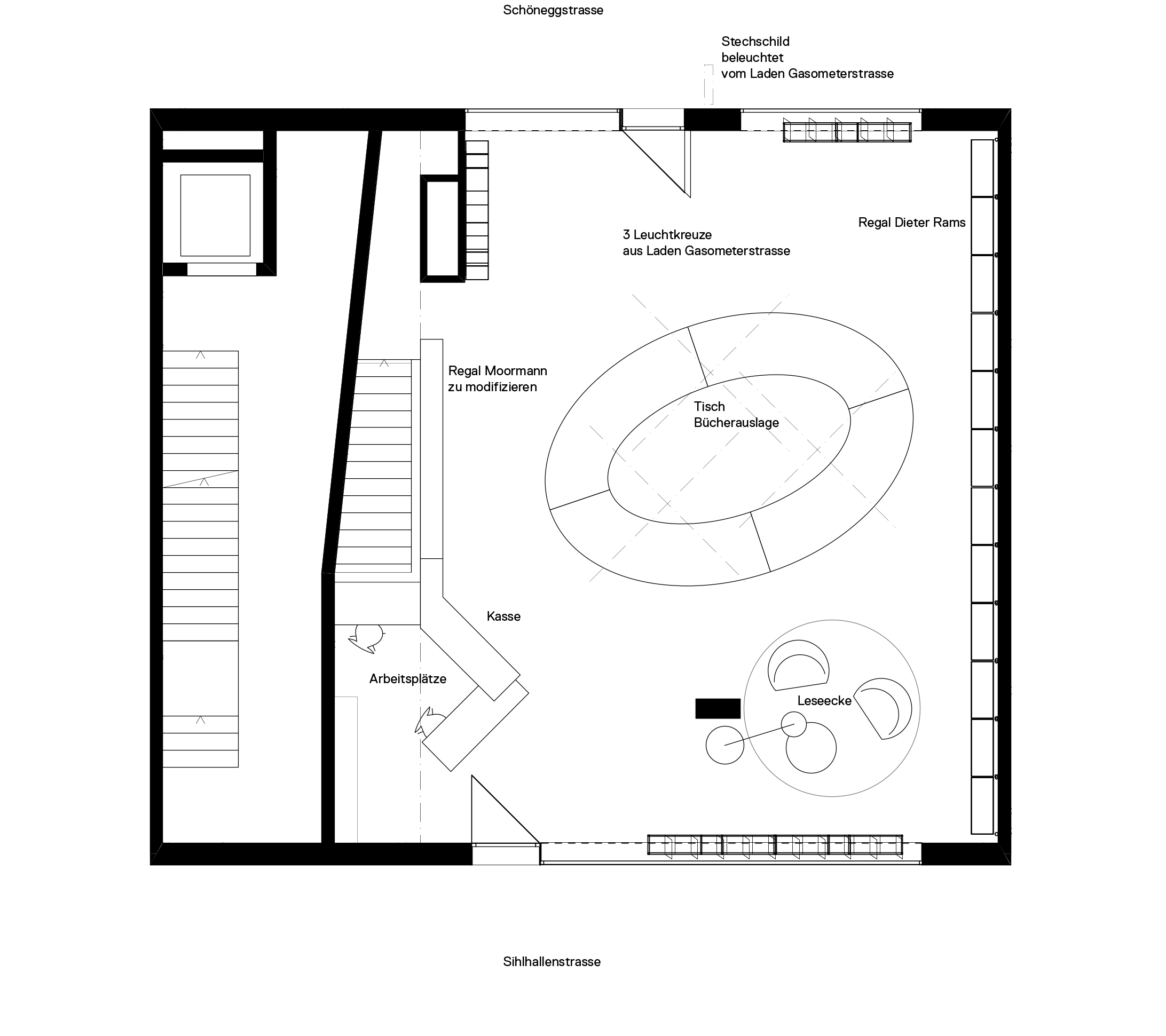
HochParterre
HochParterre
Hoch Parterre Bookstore
Conversion
Zurich, Switzerland, 2022
Subscribe
Subscribed
LUZSADA studio
Sign me up
Already have a WordPress.com account?
Log in now.
LUZSADA studio
Subscribe
Subscribed
Sign up
Log in
Copy shortlink
Report this content
View post in Reader
Manage subscriptions
Collapse this bar
Loading Comments...
Write a Comment...
Email (Required)
Name (Required)
Website